SON ART HOUSE
00
Skip to content
Home
Works
About Us
Contact
WE ARE ALWAYS HERE
No. 4, Lane 86, De Tran Khat Chan Street Thanh Luong Ward, Hai Ba Trung District, Ha Noi
038 388 3339
son.arthouse@gmail.com
Facebook
Instagram
Tiktok
residential projects
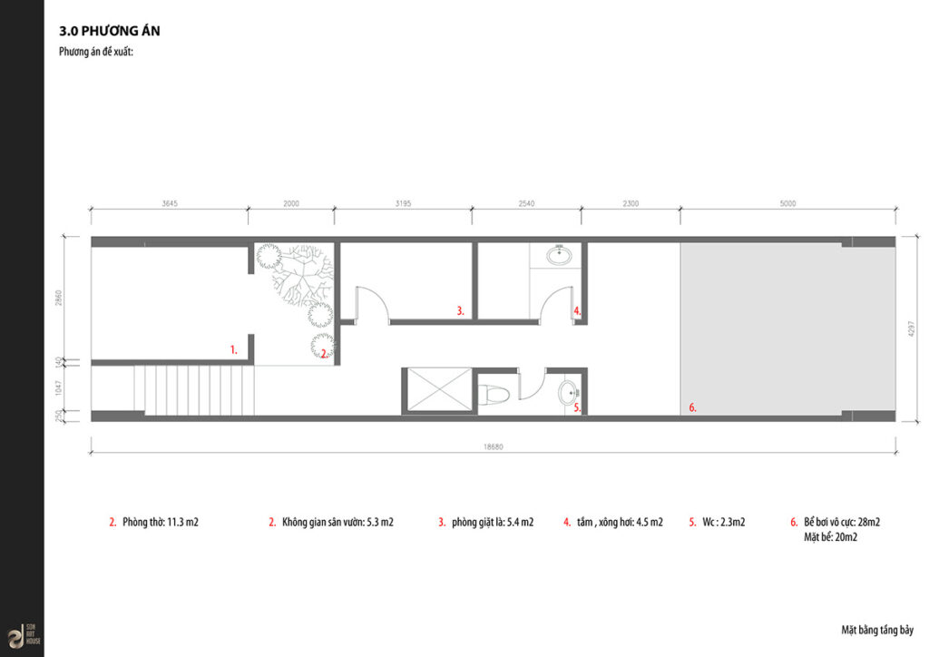
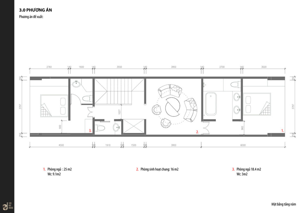
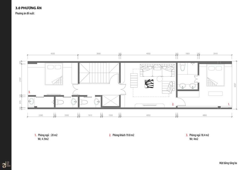
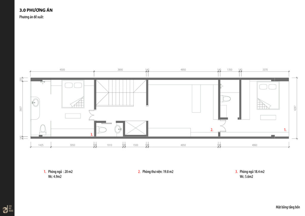
NHÀ TP – CONCEPT
Year
2022
Area
560m2
Lead Architects
Truong Ngoc Son,Vu Duy Hoang
NEXT PROJECT
0712BDiscoverycetral