SON ART HOUSE
00
Skip to content
Home
Works
About Us
Contact
WE ARE ALWAYS HERE
No. 4, Lane 86, De Tran Khat Chan Street Thanh Luong Ward, Hai Ba Trung District, Ha Noi
038 388 3339
son.arthouse@gmail.com
Facebook
Instagram
Tiktok
residential projects
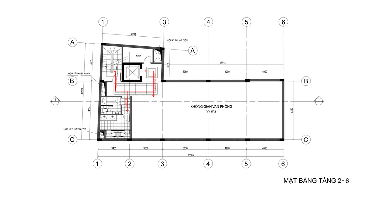
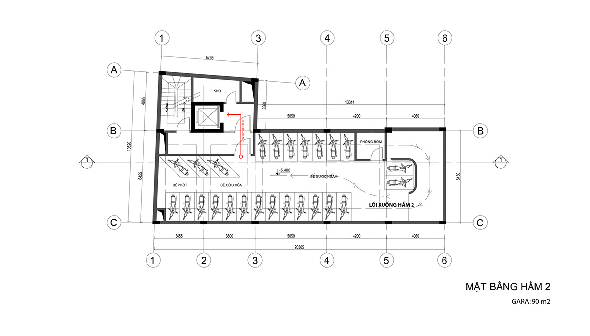
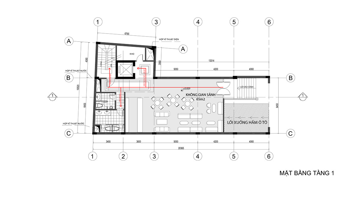
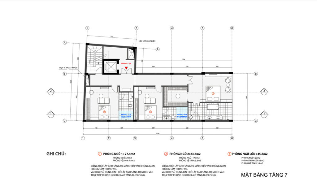
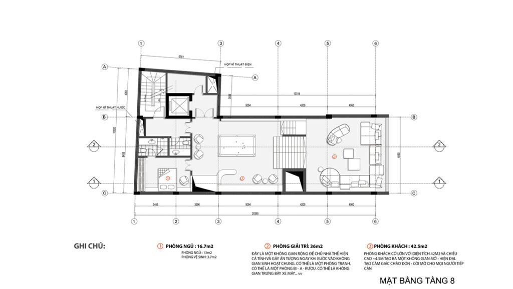
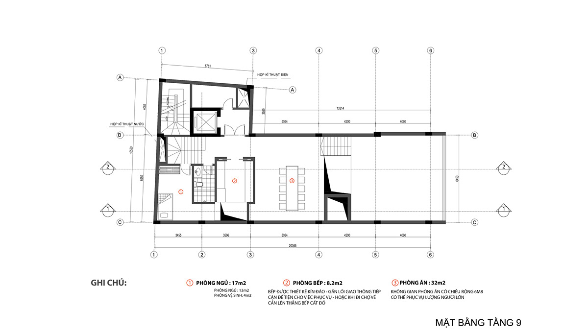
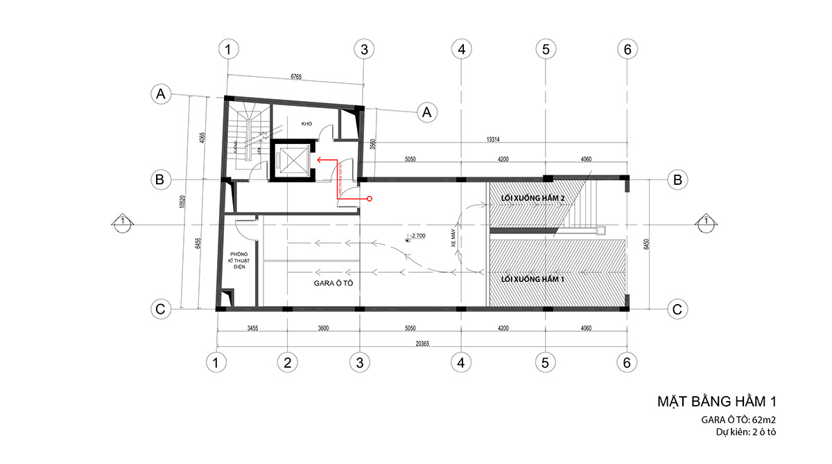
282 BÀ TRIỆU – concept
Year
2021
Area
1200m2
Lead Architects
Hoang Xuan Lam, Truong Ngoc Son, Vu Duy Hoang
NEXT PROJECT
CẢI TẠO NHÀ ĐL